Bundesschulzentrum St. Veit

Um- und Zubau
Kooperation
halm.kaschnig.wührer architekten mit spado architects
Fertigstellung
2012
Leistung
Objektplanung Architektur
Auftraggeber
Stadtgemeinde St. Veit an der Glan
Nominierung
Landesbaupreis Kärnten 2013

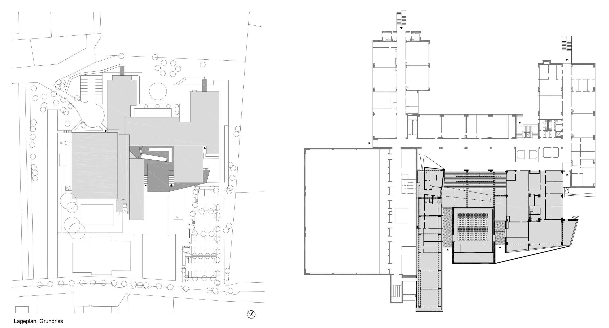
Das Bundesschulzentrum aus den 1980er Jahren, das ein Bundesrealgymnasium und eine HLW mit insgesamt etwa 1.100 SchülerInnen beherbergt, wurde im Rahmen der Sanierungsmaßnahmen auf den aktuellen Stand der Technik gebracht und durch Zubau- und Umstrukturierungen „fertiggebaut“. Im Bestandsbereich wurden Klassenräume und Sonderunterrichtszonen neu organisiert, Brandschutz- und Fluchtwegkonzepte optimiert und das Gebäude durchgängig barrierefrei zugänglich gemacht.

Der Zubau füllt vorhandene Leerbereiche und nutzt das erforderliche Bauvolumen optimal. So wurde der Innenhof geschlossen und beherbergt nun die Eingangshalle sowie einen Mehrzwecksaal. Ein bestehender, auf Säulen stehender Klassentrakt wurde zweigeschossig unterbaut, in diesen Bereichen wurden Verwaltungszonen und Schülergarderoben angeordnet. Die beiden Schulbereiche wurden funktional voneinander entkoppelt, während großzügige Lehrerarbeitsräume für beide Schulen geschaffen wurden. Auch der ehemals obsolet gewordene Schutzbunker konnte sinnvoll in das Raumprogramm integriert werden.

Das neue Bauvolumen präsentiert sich als homogene Füllmasse, die Nischen und Freiräume aufgreift und sich harmonisch in den bestehenden Kontext einfügt. Fassade und Dach bestehen aus Fertigbetonelementen, deren durchgängige Materialität den Entwurfsansatz der Homogenität unterstreicht. Im Innenbereich wurden die Leitfarben Rot und Gelb des Bestands übernommen und zu großzügigen, einheitlichen Flächen ausgebaut, die Ruhe und Gelassenheit vermitteln – optimale Voraussetzungen für die jungen, wissbegierigen Nutzerinnen und Nutzer.

(Fotos: © Rainer Wührer; © Kurt Kuball)