Kinderkrippe & Kindergarten Bad Eisenkappel

Kooperation
halm.kaschnig.wührer architekten
Fertigstellung
2019
Leistung
Objektplanung Architektur
Auftraggeber:in
Marktgemeinde Eisenkappel-Vellach
Zertifizierung
klimaaktiv Gold

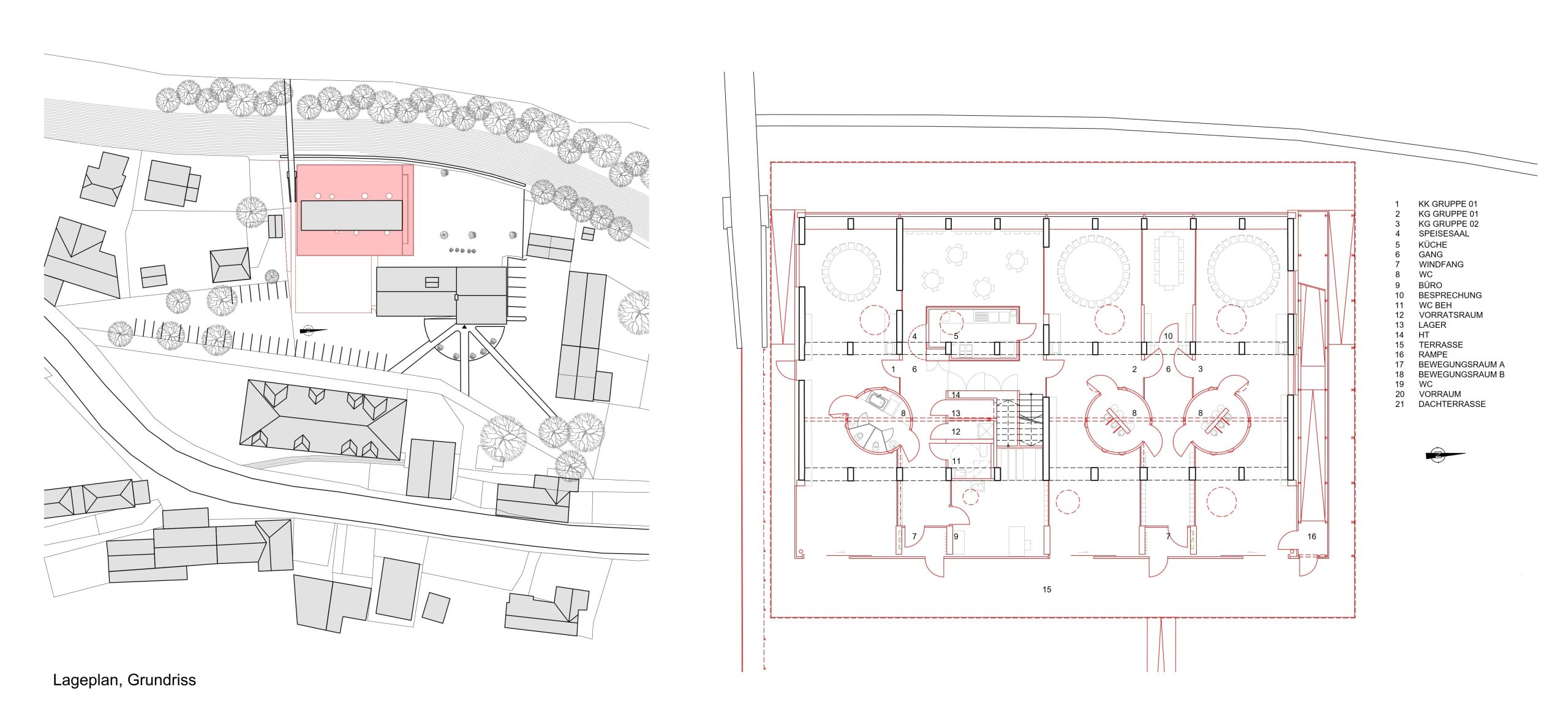
Das bestehende Kindergartengebäude in Bad Eisenkappel wurde in den späten 1960er-Jahren errichtet und ursprünglich zweihüftig mit versetzten Pultdächern konzipiert. Die Gruppenräume waren dadurch sowohl von Osten als auch von Westen belichtet. Eine Aufstockung gegen Ende des 20. Jahrhunderts, in der Bewegungsräume und Verwaltung untergebracht wurden, veränderte diese Qualität grundlegend und führte zu einer überwiegenden Westausrichtung der Gruppenräume.

In den vergangenen Jahren stieg der Bedarf an Betreuungsplätzen erneut deutlich an. Insbesondere das Fehlen von Räumen für eine Kinderkrippe führte zu einer intensiven Standortdiskussion und schließlich zur Entscheidung, den bestehenden Kindergarten umfassend zu sanieren und durch einen Zubau zu erweitern.

Die Integration einer Krabbelstube erfordert zusätzliche Flächen, die unter möglichst schonendem Umgang mit dem Grundstück geschaffen werden. Gleichzeitig war es ein zentrales Anliegen, den unterschiedlichen Nutzergruppen – Kindergarten und Krabbelstube – eigene Identifikationsbereiche zuzuordnen. Vor allem für die jüngsten Kinder werden klar definierte und eigenständig erschlossene Bereiche vorgesehen, die ihren spezifischen Bedürfnissen gerecht werden.

Ausgehend von der Analyse der bestehenden Struktur wurde ein Konzept entwickelt, das die Ost-West-Ausrichtung wieder stärkt und jeder Gruppe durchgängige Raumeinheiten mit flexiblen Nutzungsmöglichkeiten im Tagesverlauf bietet. Die bestehende Aufstockung wird für Bewegungs- und Ruheräume adaptiert, während entlang der Ostseite ein durchgehender Zubau die fehlenden Flächen ergänzt. Die barrierefreie Erschließung der Obergeschosse erfolgt über eine angebaute Rampensituation, die zugleich als verbindendes Element zwischen den Außenbereichen und den Dachflächen dient.

Im Zuge der Generalsanierung werden sämtliche Bauteile umfassend erneuert und an den heutigen Standard angepasst. Der bestehende Fußbodenaufbau wird vollständig ersetzt und entsprechend den erforderlichen bauphysikalischen Anforderungen neu ausgeführt. Tragende Strukturen, insbesondere im Bereich der Aufstockung, werden verstärkt und ertüchtigt. Das Dach über dem Erdgeschoss wird grundlegend saniert, während im Bereich der Aufstockung eine Ergänzung der Dämmung erfolgt. Zusätzlich werden alle Fenster erneuert sowie die Fassaden gedämmt und neu gestaltet.

Zur Verbesserung der Raumluftqualität ist der Einbau einer Lüftungsanlage für Gruppen- und Bewegungsräume vorgesehen. Auch die Küche wird mit einer Anlage ausgestattet, die den Anforderungen der Wärmerückgewinnung entspricht. Sämtliche elektrotechnischen Installationen werden erneuert und auf den aktuellen Stand der Technik gebracht.

Ein weiterer Schwerpunkt liegt auf der energieeffizienten Beleuchtung. Bestehende Leuchten werden durch neue LED-Systeme ersetzt, wodurch in einzelnen Bereichen Einsparungen von bis zu 30 Prozent erzielt werden können. Der Sonnenschutz erfolgt im Erdgeschoss über weit auskragende Vordächer, die gleichzeitig geschützte Terrassenbereiche für die Kinder schaffen. Im Obergeschoss werden außenliegende Beschattungssysteme in Form von elektrisch gesteuerten Raffstores eingesetzt.

Insgesamt entsteht durch die Sanierung und Erweiterung ein zeitgemäßes, funktional klar gegliedertes Gebäude, das sowohl den gestiegenen Anforderungen an Betreuung als auch den räumlichen Bedürfnissen der Kinder gerecht wird.

(Fotos: ©Paul Ott)